Description
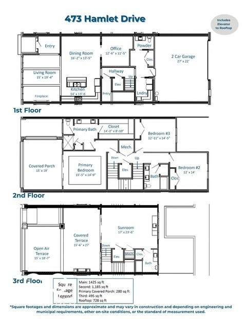
Elevate your lifestyle with the stunning 3 Story Townhome in JG Village of Carmel, an exceptional residence brought to you by the McKenzie Collection. Designed for those who value both luxury and thoughtful functionality, this townhome redefines sophisticated urban living across three impeccably designed levels. Step inside to over 3,100 square feet of exquisitely finished living space where elegance meets innovation. The main living room showcases two striking ceiling beams, adding architectural depth to the open-concept design. Just off the main living area, a dedicated office space offers privacy with sleek pocket doors -perfect for remote work or quiet retreat. The heart of the home, the kitchen, exemplifies modern luxury with custom stacked cabinetry, a quartz waterfall island, and premium Sub-Zero Wolf appliances. Take the elevator, or earn your steps up the hardwood stairs that enhance the home's timeless design, while 10' ceilings on the main floor and 9' ceilings on the upper levels amplify the sense of spaciousness. Smart and sustainable features abound, including a video doorbell, Brilliant smart home technology, an EV charger in the garage, and energy-efficient spray foam insulation for added soundproofing and comfort. The third floor is where luxury outdoor living takes center stage. A direct vent gas linear fireplace anchors the expansive outdoor rooftop area. Entertain with ease at the 8' wet bar with under-cabinet refrigerator, cook out using the gas line ready for a grill, or prepare for future relaxation with a hot tub rough-in. Unlike typical plans, this layout includes a full bath with a shower, maximizing functionality for guests and residents alike. From its elevated finishes to its cutting-edge smart tech and rooftop retreat, every detail embodies intentional design and refined living-making this more than just a home, but a true sanctuary. Anticipated completion is February 2026.
-
3BEDS
-
0.06ACRES
-
3BATHS
-
11/2 BATHS
-
3,105SQFT
-
$377$/SQFT
Description
Elevate your lifestyle with the stunning 3 Story Townhome in JG Village of Carmel, an exceptional residence brought to you by the McKenzie Collection. Designed for those who value both luxury and thoughtful functionality, this townhome redefines sophisticated urban living across three impeccably designed levels. Step inside to over 3,100 square feet of exquisitely finished living space where elegance meets innovation. The main living room showcases two striking ceiling beams, adding architectural depth to the open-concept design. Just off the main living area, a dedicated office space offers privacy with sleek pocket doors -perfect for remote work or quiet retreat. The heart of the home, the kitchen, exemplifies modern luxury with custom stacked cabinetry, a quartz waterfall island, and premium Sub-Zero Wolf appliances. Take the elevator, or earn your steps up the hardwood stairs that enhance the home's timeless design, while 10' ceilings on the main floor and 9' ceilings on the upper levels amplify the sense of spaciousness. Smart and sustainable features abound, including a video doorbell, Brilliant smart home technology, an EV charger in the garage, and energy-efficient spray foam insulation for added soundproofing and comfort. The third floor is where luxury outdoor living takes center stage. A direct vent gas linear fireplace anchors the expansive outdoor rooftop area. Entertain with ease at the 8' wet bar with under-cabinet refrigerator, cook out using the gas line ready for a grill, or prepare for future relaxation with a hot tub rough-in. Unlike typical plans, this layout includes a full bath with a shower, maximizing functionality for guests and residents alike. From its elevated finishes to its cutting-edge smart tech and rooftop retreat, every detail embodies intentional design and refined living-making this more than just a home, but a true sanctuary. Anticipated completion is February 2026.
© 2026 Metropolitan Indianapolis Board of REALTORS®. IDX information is provided exclusively for consumers' personal, non-commercial use and may not be used for any purpose other than to identify prospective properties consumers may be interested in purchasing. Information is deemed reliable but is not guaranteed accurate by the BLC® listing service or The Indy Property Source | Keller Williams Realty.
Based on information submitted to the MLS GRID as of 2026-01-14T20:26:12.403. All data is obtained from various sources and may not have been verified by broker or MLS GRID. Supplied Open House Information is subject to change without notice. All information should be independently reviewed and verified for accuracy. Properties may or may not be listed by the office/agent presenting the information.
Click here for MLS GRID DMCA Notice
