Description
Expected completion scheduled for late January 2026. This is an affordable housing build developed by Southeast Neighborhood Development (SEND). Buyer's income must qualify under current HUD Income Limits. Property must be owner-occupied. INCOME RESTRICTIONS APPLY WITHOUT EXCEPTION! HUD HOME Program Income Limits - total combined household income of all members 18+ cannot exceed the following income thresholds: Household of 1: $57,650, Household of 2: $65,850, Household of 3: $74,100, Household of 4: $82,300, Household of 5: $88,900, Household of 6: $95,500. All buyers must apply at SEND (Southeast Neighborhood Development) website https://www.sendcdc.org/home-ownership and qualify before an offer will be accepted. Sale of home to buyer is contingent upon SEND's determination that buyer's household income is at or below the HUD required 80% AMI and housing cost does not account for more than 30% of total monthly income. Recapture agreement described in agent to agent remarks.
-
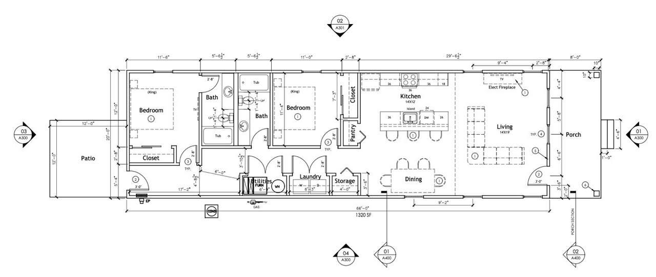
2BEDS
-
0.1ACRES
-
2BATHS
-
01/2 BATHS
-
1,300SQFT
-
$119$/SQFT
Description
Expected completion scheduled for late January 2026. This is an affordable housing build developed by Southeast Neighborhood Development (SEND). Buyer's income must qualify under current HUD Income Limits. Property must be owner-occupied. INCOME RESTRICTIONS APPLY WITHOUT EXCEPTION! HUD HOME Program Income Limits - total combined household income of all members 18+ cannot exceed the following income thresholds: Household of 1: $57,650, Household of 2: $65,850, Household of 3: $74,100, Household of 4: $82,300, Household of 5: $88,900, Household of 6: $95,500. All buyers must apply at SEND (Southeast Neighborhood Development) website https://www.sendcdc.org/home-ownership and qualify before an offer will be accepted. Sale of home to buyer is contingent upon SEND's determination that buyer's household income is at or below the HUD required 80% AMI and housing cost does not account for more than 30% of total monthly income. Recapture agreement described in agent to agent remarks.
© 2026 Metropolitan Indianapolis Board of REALTORS®. IDX information is provided exclusively for consumers' personal, non-commercial use and may not be used for any purpose other than to identify prospective properties consumers may be interested in purchasing. Information is deemed reliable but is not guaranteed accurate by the BLC® listing service or The Indy Property Source | Keller Williams Realty.
Based on information submitted to the MLS GRID as of 2026-02-13T22:25:38.197. All data is obtained from various sources and may not have been verified by broker or MLS GRID. Supplied Open House Information is subject to change without notice. All information should be independently reviewed and verified for accuracy. Properties may or may not be listed by the office/agent presenting the information.
Click here for MLS GRID DMCA Notice
